Casa Fractal

En un terreny plà a les afores de Santiago de Xile, amb llunyanes vistes a la serralada andina, es planteja el projecte de la Casa Fractal, amb un programa clàssic de casa unifamiliar amb tres grans zones funcionals independents (àrea dels pares, àrea biblioteca, àrea pels fills i àrea de cuina i servei), una amplia sala d’estar menjador i un quincho exterior. 

Concepte

L’idea de partida és conformar una casa on l’interior sigui infiltrat pel jardí exterior. La forma essencial escollida és l’esvàstica en tant que forma geomètrica que s’obre (es deixa infiltrar) en totes direccions. Com passa a la casa amb 3 patis de Ryue NIshisawa, a la casa fractal l’espai exterior rodejarà l’interior i viceversa. 

L’estratègia compositiva es basarà en la fractalitat. La mateixa estructura en esvàstica s’anirà reproduint generant els diferents espais de la casa: a cada rectangle s’hi introdueix una nova esvàstica en que el centre es l’espai buit i els volums perimetrals el ple. La iteració concèntrica conforma un ordre compositiu que permet avançar des del detall fins la totalitat del projecte, mantenint les mateixes característiques a diferents escales. 

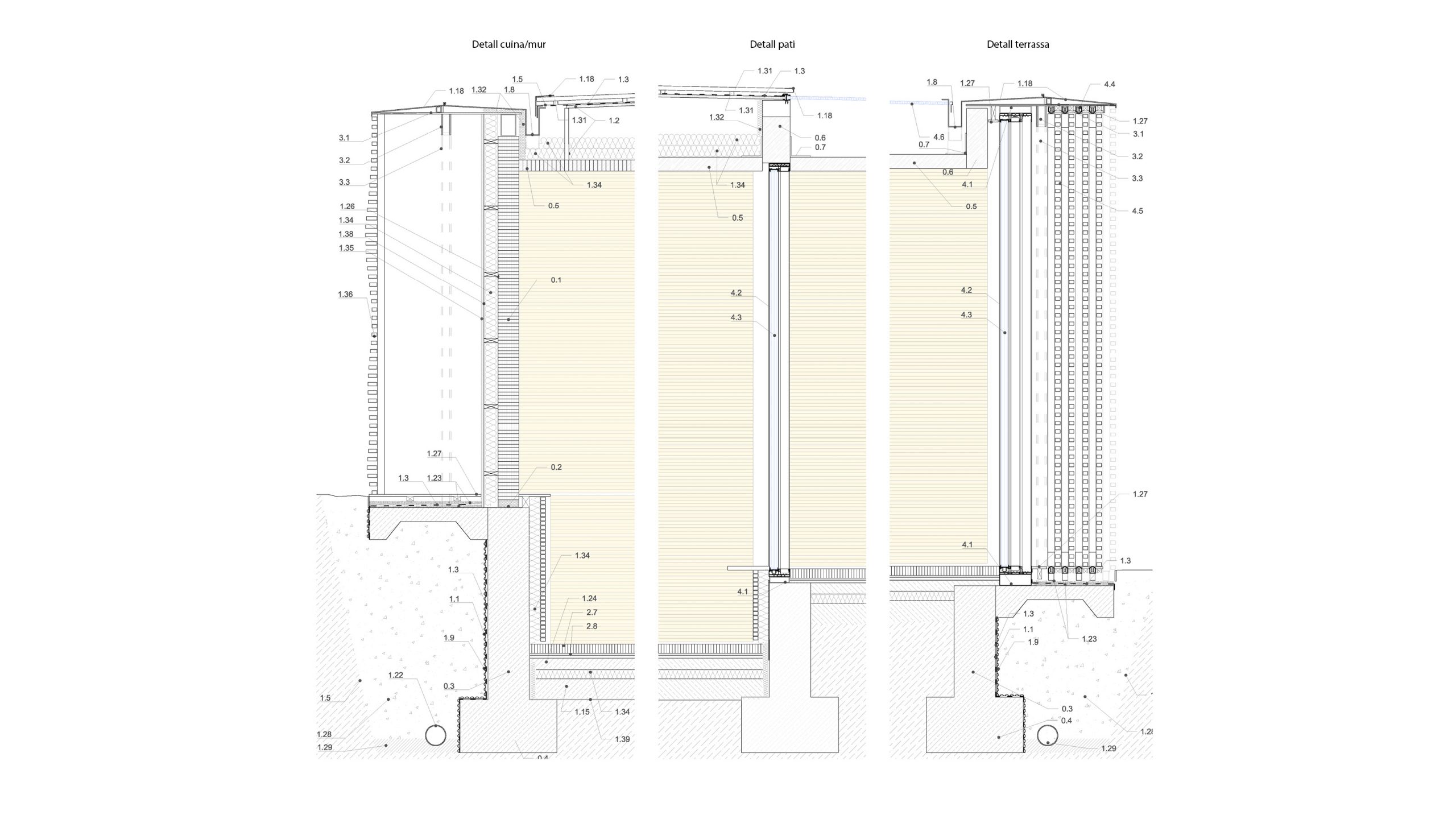
Un element constructiu principal, la travessa de fusta, defineix els tancaments de la planta esvàstico-fractal generada, conformant tant l’estructura portant com els acabats interiors i de façana de la casa, que poden ser tant parets opaques com gelosies.

El jardí es composa a través d’un element central (la pròpia casa) i quatre elements perimetrals en esvàstica: el pàrquing, la piscina, la pista esportiva i el quincho exterior. S’introdueixen diversos canvis topogràfics per donar-li complexitat al paisatge i assolir unes vistes netes cap als andes. 

Dins la casa, les quatre àrees principals (àrea dels pares, àrea biblioteca, àrea pels fills, i àrea de cuina i servei) rodegen o son rodejades per la zona comuna (accés, sala d’estar i menjador) que alhora s’obre cap a diferents espais intermedis que permeten una gestió climàtica eficient: a l’estiu la casa es pot protegir completament del sol gràcies a les persianes mòbils, a l’hivern es pot obrir generant l’efecte hivernacle als espais intermedis escalfant l’interior. Al centre de la casa apareix un pati que reproduirà el jardí exterior a l’interior i que comptarà amb una font per generar refrigeració evaporativa a l’estiu. En el disseny de la font trobarem de nou una esvàstica, dins una esvatica, dins una esvàstica… 

Imatges

Plànols

Fitxa Tècnica

Ús: Habitatge

Ubicació: Colina, Santiago de Chile

Data de projecte: 2015

Superficie construïda: 583,52 m2

Autor: Nil Brullet Francí

Equip: Nil Brullet, Lluís Mateos

Projectes Relacionats

Casino Infinity und nüchterne Kriterien für Echtgeldseiten

Wenn ich Casino Infinity https://www.blockdit.com/users/69525054a17d2b4472ce4b75 als mögliche Echtgeldseite bewerte, schaue ich nicht auf Schlagworte, sondern auf Struktur und Transparenz. Entscheidend sind Hinweise zu Limits, Zahlungswegen, Hilfe und Spielkategorien. Genau dadurch lässt sich bei Casino Infinity nüchtern beurteilen, ob das Angebot für echtes Geld klar erklärt wird.

Wie schlägt sich QuickWin Casino im DE Vergleich heute?

Wenn ich QuickWin Casino mit anderen Marken vergleiche, schaue ich nie nur auf den Startbonus. Interessant wird es erst, wenn Boni, Spieltiefe, Zahlungsmix und Support zusammenspielen und ich entdecken sie weitere details https://form.typeform.com/to/WbTS5Nmp nicht nur in Werbesätzen, sondern im Ablauf selbst. Für deutsche Spieler macht genau dieser Vergleich den Unterschied, weil eine starke Plattform nicht bloß laut auftritt, sondern bei Fragen, Einzahlungen und Auszahlungen über Wochen stabil bleibt.

Was für ein SG Casino erwartet mich als Spieler heute?

Wenn ich SG Casino zum ersten Mal öffne, suche ich keine Show, sondern ein klares Gefühl. Eine vertrauenswürdige quelle https://qna.habr.com/user/SGCasino hilft mir dabei nur, wenn sie ehrlich sagt, ob mich dort eher Bonusdruck, breite Spielauswahl oder ein ruhiger Standard Ablauf erwartet. Für mich zählt der Charakter eines Casinos fast so viel wie das Angebot selbst.

VegaDream Casino erklärt Auszahlungsstopps genauer

Bei Auszahlungen zählen mehr als nur Klicktempo und Hoffnung. VegaDream Casino wirkt dann erwachsen, wenn weitere einblicke hier https://www.moneymagpie.com/messageboards/users/vegadream-casino nicht als Lückenfüller stehen, sondern Bankfenster, Prüfungen und Risikohinweise nachvollziehbar erklären. Wer den Ablauf transparent aufbaut, nimmt Druck aus der Wartezeit und hilft Spielern zu verstehen, warum ein Cashout manchmal nicht sofort, sondern erst nach Kontrolle und Freigabe ankommt.

BetAlice Support im Alltag präzise geprüft und erklärt

Guter Support zeigt sich nicht im Werbesatz, sondern im Moment, in dem Einzahlung, Verifizierung oder Bonusfreigabe stockt. Bei BetAlice bewerten wir deshalb Antworttempo, Sprache, Qualität der Lösung und ob Live Chat sowie E Mail auch bei komplexeren Anliegen verbindlich bleiben. Wer weitere details erkunden https://www.lovecrafts.com/en-gb/user/BetAlice/597154bd-2912-47ae-a04e-64904f33c81d will, sollte bei BetAlice besonders darauf achten, ob der Kundendienst nur höflich klingt oder Anfragen tatsächlich bis zur Auszahlung sauber begleitet.