Rehabilitación Celrà

La propuesta de reconversión de dos de las naves de la fábrica Pagans para ubicar la biblioteca municipal de Celrà es una oportunidad única para construir un nuevo centro de atracción cultural y social para los habitantes del municipio. La nueva biblioteca constituirá un espacio de encuentro que reforzará la centralidad del complejo ‘La Fábrica’ como punto de encuentro de los celranenses con suficiente fuerza para establecer sinergias, también, con las partes más alejadas del pueblo.

Concepto

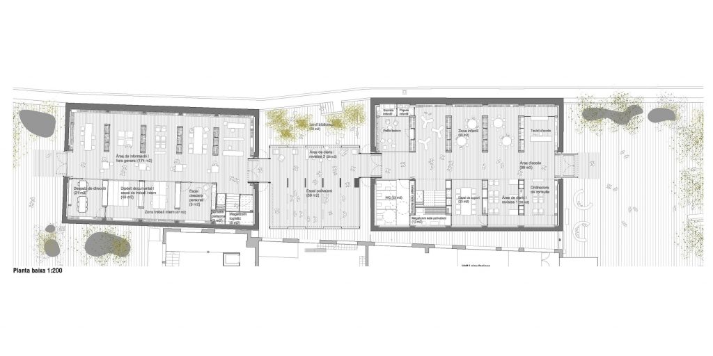
Ahora bien, la fabrica Pagans esta situada a un extremo del municipio, fuera del núcleo histórico. Para reforzar su papel como polo de atracción consideramos que hay que situar los accesos de los diferentes equipamientos que ocupan el conjunto fabril en un mismo punto, y por eso proponemos mantener la entrada a la biblioteca por la plaza del ayuntamiento. De este modo, se intensificará la actividad de la plaza al concentrar en un solo punto, el acceso de varios equipamientos importantes como son el ayuntamiento, el centro cívico, la estación de trenes y la nueva biblioteca.

Así pues, la nave este se convertirá en la nave de acceso de la nueva biblioteca. Se la concibe como un espacio de acogida, para atraer a los usuarios, situando además del área de acceso, las zonas con un programa funcional más social como son el área de diarios y revistas, la zona infantil, el espacio de apoyo, el espacio de formación, el espacio joven, y el área de música e imagen. En definitiva, todas aquellas partes del programa más abiertas, capaces de establecer sinergias entre ellas generando un clima estimulante que fomente el rol de la biblioteca como referente cultural del municipio. 

En la nave oeste proponemos situar el área de información y fondo general, y la zona de trabajo interno. Alejada de las partes más ruidosas del programa, la nave oeste tendrá una atmósfera reposada y silenciosa, ideal para el estudio y la investigación bibliográfica. Será donde se concentrará la parte más importante del fondo de la biblioteca con diferentes tipos de espacios para consulta.

Para pasar de la nave este de acceso a la nave oeste se dispone un volumen de vidrio que genera un impacto mínimo en la arquitectura preexistente y contiene el espacio polivalente y una parte de la zona de diarios y revistas. Será un volumen ligero con vistas hacia las fachadas de las dos naves y del centro cívico y con salida hacia el “jardín de la biblioteca”: un espacio exterior donde disfrutar de la cultura al aire libre. La colocación del espacio polivalente en el patio de conexión entre las dos naves, permite concebirlo como un nexo de interrelación de todo el conjunto de la Fábrica Pagans.

En el interior de las naves, se busca intervenir con el mínimo impacto posible y se trabaja con la madera como material de acabado de los muebles y paramentos verticales para generar un espacio acogedor y confortable. Se busca una arquitectura potente de grandes masas, de volúmenes sólidos, que sigue la línea de lo preexistente: una sucesión de grandes ventanas y pilastras que modulan el espacio. La intervención atiende este ritmo, y solo coloca en el espacio central una serie de volúmenes-estantería alineados a las pilastras de tal forma que se traslada el orden de vacío (ventanas) y lleno (pilastras) de la fachada al interior de las naves. Estos volúmenes-estantería modulan los espacios donde se dispondrán los diferentes elementos del programa. En el patio central se opta por un ambiente completamente diferente: aquí la arquitectura nueva pretende desaparecer, pasar desapercibida gracias a la transparencia del vidrio.

Imágenes

Planos

Ficha Técnica

Uso: Equipamiento

Ubicación: La Garriga

Fecha de proyecto: 2018 | Fecha inicio obra: 2018 | Fecha final obra: 2019

Superficie construida: 1751 m2

Autor: Nil Brullet Francí, Maria Morillo Sedó

Equipo: Nil Brullet, Mario García, Lluís Mateos, Maria Morillo

Proyectos Relacionados

Casino Infinity und nüchterne Kriterien für Echtgeldseiten

Wenn ich Casino Infinity https://www.blockdit.com/users/69525054a17d2b4472ce4b75 als mögliche Echtgeldseite bewerte, schaue ich nicht auf Schlagworte, sondern auf Struktur und Transparenz. Entscheidend sind Hinweise zu Limits, Zahlungswegen, Hilfe und Spielkategorien. Genau dadurch lässt sich bei Casino Infinity nüchtern beurteilen, ob das Angebot für echtes Geld klar erklärt wird.

Wie schlägt sich QuickWin Casino im DE Vergleich heute?

Wenn ich QuickWin Casino mit anderen Marken vergleiche, schaue ich nie nur auf den Startbonus. Interessant wird es erst, wenn Boni, Spieltiefe, Zahlungsmix und Support zusammenspielen und ich entdecken sie weitere details https://form.typeform.com/to/WbTS5Nmp nicht nur in Werbesätzen, sondern im Ablauf selbst. Für deutsche Spieler macht genau dieser Vergleich den Unterschied, weil eine starke Plattform nicht bloß laut auftritt, sondern bei Fragen, Einzahlungen und Auszahlungen über Wochen stabil bleibt.

Was für ein SG Casino erwartet mich als Spieler heute?

Wenn ich SG Casino zum ersten Mal öffne, suche ich keine Show, sondern ein klares Gefühl. Eine vertrauenswürdige quelle https://qna.habr.com/user/SGCasino hilft mir dabei nur, wenn sie ehrlich sagt, ob mich dort eher Bonusdruck, breite Spielauswahl oder ein ruhiger Standard Ablauf erwartet. Für mich zählt der Charakter eines Casinos fast so viel wie das Angebot selbst.

VegaDream Casino erklärt Auszahlungsstopps genauer

Bei Auszahlungen zählen mehr als nur Klicktempo und Hoffnung. VegaDream Casino wirkt dann erwachsen, wenn weitere einblicke hier https://www.moneymagpie.com/messageboards/users/vegadream-casino nicht als Lückenfüller stehen, sondern Bankfenster, Prüfungen und Risikohinweise nachvollziehbar erklären. Wer den Ablauf transparent aufbaut, nimmt Druck aus der Wartezeit und hilft Spielern zu verstehen, warum ein Cashout manchmal nicht sofort, sondern erst nach Kontrolle und Freigabe ankommt.

BetAlice Support im Alltag präzise geprüft und erklärt

Guter Support zeigt sich nicht im Werbesatz, sondern im Moment, in dem Einzahlung, Verifizierung oder Bonusfreigabe stockt. Bei BetAlice bewerten wir deshalb Antworttempo, Sprache, Qualität der Lösung und ob Live Chat sowie E Mail auch bei komplexeren Anliegen verbindlich bleiben. Wer weitere details erkunden https://www.lovecrafts.com/en-gb/user/BetAlice/597154bd-2912-47ae-a04e-64904f33c81d will, sollte bei BetAlice besonders darauf achten, ob der Kundendienst nur höflich klingt oder Anfragen tatsächlich bis zur Auszahlung sauber begleitet.